Italiano
1 Bagni 90 m2
Caratteristiche principali
Prezzo
550,00 EUR / mese
Classe
F (273,64 [kWh/m²a])
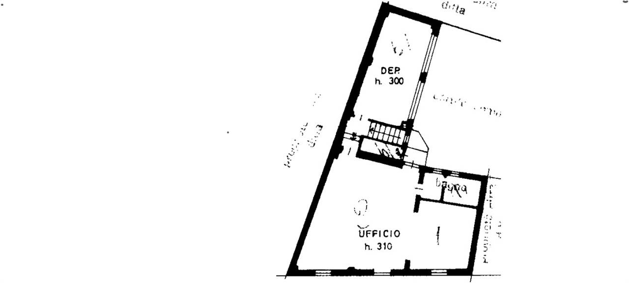
Locali
2
Altre caratteristiche e accessori
Stato Immobile
Buono
Grado
Signorile
Posizione
Centro Storico
Panorama
Vista Aperta
Piano
Primo
Orientamento
Est Sud Ovest
Totale Piani
Uno
Lati Liberi
3
Arredi
Non Arredato
Riscaldamento
Autonomo
Tipo Impianto
Radiatori
Acqua Calda
Autonoma
Infissi
Legno Doppio Vetro
Serramenti
Buono
Persiana
Tapparella Legno
Pavim. Cucina
Ceramica
Pavim. Bagno
Ceramica
Pavimento
Ceramica
Cauzione
Tre Mesi
Canoni Anticipati
Un Mese
Tipo Contratto
6+6 Anni
Tipo Registr.
Tradizionale
Accessori
Doppi Vetri, Fibra Ottica, Passaggio Automobilistico, Passaggio Pedonale, Porta Blindata, Rete Dati, Ripostiglio, Tapparelle Elettriche
Scopri questo ufficio luminoso di circa 90 mq, ideale per professionisti e piccole imprese. Situato al primo piano, l'immobile offre un ambiente di lavoro accogliente e funzionale, con un'ottima esposizione che garantisce luce naturale durante tutto il giorno. Il balcone privato è perfetto per una pausa all'aria aperta, mentre la facilità di parcheggio gratuito rende l'accesso comodo per te e i tuoi clienti.

L'ufficio si trova in una zona di forte passaggio automobilistico e pedonale, assicurando visibilità e opportunità di networking. Con riscaldamento autonomo e NESSUNA SPESA CONDOMINIALE, la gestione dei costi è semplice e trasparente. Disponibile subito, canone mensile Euro 550,00 (esente IVA Art. 10)
Video
piazza san marino 1, Inveruno (MI)
Cookie preference